Interested in the newly refurbished St Mary’s Church Whitkirk Community Centre? Visit their website for more details.
Want to read the latest? Check out our Hall Redevelopment Blog.
The Project
The Church Hall was built in 1968 and since then has served the parish and the local community well, hosting Church events, musical performances, theatrical productions, political meetings and much more, as well as a wide range of social events and private functions.
In recent years the Parochial Church Council (PCC), the governing body of the Church, has been looking at how we might refresh and update the hall ready for the next 50 years, making it more flexible and better able to serve the community.
The Design
The planned redevelopment work takes the things people say they love about the Hall and builds on them, whilst dramatically improving things people have told us they think could be better.
Rear Extension & Lobby
The biggest change is to the space at the rear of the Hall by the entrance, where the existing kitchen and toilet block will be demolished to make way for an extension featuring an enlarged kitchen, additional storage, new toilet facilities, a new Parish office and new display spaces.
For many Hall users the larger kitchen offers more space for storage and preparation, as well as a new layout to help streamline everything from serving coffee after a morning service through to serving food at a wedding reception. New storage spaces both externally and internally help keep things tidy, as well as make sure people can get to the things they need quickly and easily.
The new toilet block features single-occupancy cubicles which improve privacy and increase capacity, and includes a new accessible toilet with baby changing facilities. Alongside this a new Parish office helps to improve the Church’s day-to-day administration and make life easier for its many volunteers. A refresh of the room which is currently the office will create a space for meetings, training, group sessions and more.
Finally, at the entrance to the Hall a new disabled access ramp meets modern standards for accessibility, making it easier to get wheelchairs and pushchairs into the building, and a refresh of the lobby area gives a great space for greeting people.
Multi-Purpose Room
Currently a mixture of the choir vestry and Parish office, the Hall will regain a flexible multi-purpose room suitable for everything from choir practice to a green room for performers to a meeting space. A new drinks point means hot drinks can be easily prepared without needing to make the trip to the kitchen.
At the same time, changes to the external walls both create more space within the building itself and eliminate dark corners outside.
Bar and Stage
The bar will be moved forwards to create a new storage space behind, giving better conditions for keeping stock as well as increasing security and making it easier to serve customers. A new internal wall keeps noise down for those ordering drinks, and new shutters improve security.
By moving the storage for the bar, access is restored to both sides of the stage for Hall users, and the space underneath the stage is made available for use as storage.
Throughout the Hall
Through the entire building there will be repairs to the structure where necessary, as well as removal of asbestos. Internal doors will be replaced with fire doors where necessary
Redecoration throughout helps to make the hall more feel brighter, fresher and more welcoming, and removal of the old heating and extraction fans in the main hall will allow for new acoustic panelling to make it an even better venue for talks, music and live performances.
Plans & Drawings
All plans are for information only and are not final, and may change as the project progresses.
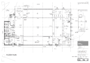
P06K – Proposed Floor Plan

Download as PDF
August 2017
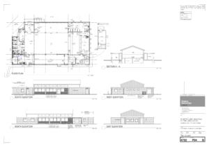
P04B – Proposed Plans & Elevations

Download as PDF
August 2017
Costs & Funding
The Parochial Church Council approved a total budget for the project of £400,000, which was be covered by a mixture of current saving, grants and fundraising.
If you are interested in making a donation to future work at St Mary’s, see our donations page for more information.
Who else has been involved?
The planning of the scheme is the culmination of over three years work which has been supported throughout by St Mary’s Parochial Church Council. On a day to day basis the work has been carried out by the Hall Redevelopment team. They have worked closely with Pearce Bottomley, Architects and Martin S Ramsden, Chartered Quantity Surveyors to ensure that a project will be delivered which will meet its original objectives.