The consultation period that was held during April and May this year, supported by 2 drop in sessions held in the Church Hall produced an excellent response from the congregation, hall users and members of the local community both on the 2 days and via the [email protected] email address. Some very interesting and innovative suggestions were made and a number of these have been taken on board. The Hall Redevelopment team have also continued to work with the architect in further refining the design which now shows some significant changes to the original design displayed during the consultation period. The new design will be on display in the Church Hall over the coming weeks and is also available on the Hall Redevelopment page on this website.
Changes from the original design
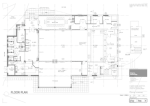
- The new extended toilet block will be unisex with 6 standard WC’s each one containing washing and hand drying facilities, along with one disabled persons WC with baby changing facilities.
- The saving in space of the unisex toilets has allowed for the office to be located on the west side of the building adjacent to the toilet block.
- The meeting room has been increased in size so that it should now comfortably accommodate approximately 20 people.
- Larger storage rooms have been included in the north east corner.
- The bar area has been reconfigured so that all bar goods are now at ground level ie. goods for the bar will not be stored in the cellar. Additional security measures have been included to protect the bar and also improvements to assist the bar staff with managing customers at the bar.
- The cellar will now be devoted to storage.
- An extension has been added to the bar lounge area on the south side of the building.
- Changes to the positioning of glazed screens and partitions around the main hall area have been made.
- The kitchen now includes a general storage area.
- A storage area for tables and/or chairs has been included in the lobby area
Items to be included in the design (not an exhaustive list)
The work required to redesign the church hall will be a major reconstruction project with numerous changes being made to virtually the entire building.
- Demolition of existing toilet block replaced by larger extension to accommodate unisex toilets and office.
- Plumbing and sanitary fittings.
- Hot water calorifier to serve kitchen and toilets with point at source heaters to tea point, bar and WC 09.
- Kitchen fittings – worktops, sink, cupboards etc
- Removal of internal walls and construction of new walls.
- New extension to south side of building.
- Installation of new high performance double glazed windows and new entrance screen.
- Installation of acoustic partitions and glazed screens, all doors to be fire resistant.
- New plasterboard and skimmed ceilings.
- Full internal redecoration and external where necessary.
- Keyless locks, particularly on external doors and other designated areas
- Re-felting of the flat sections of roof as it is over 20 years since it was last done.
- Pitched roof to be replaced with a composite metal roof.
- Broadband enabling wi-fi connection.
- New zonal heating system to allow greater control.
- Complete rewiring and upgrade electricity system to 3 phase supply.
- New lighting system.
- Install solar panels (to be investigated to determine if viable).
- New flooring appropriate to the various areas (parquet flooring in the main hall will remain as is)
- New entrance canopy, resurfacing of the car park and general landscaping (removal of the tree in the car park will be investigated).
- New fire and burglar alarm systems.
Costs
The team recently met with a Quantity Surveyor to go through the design in detail. His report which we have now received indicates that the cost of the works, including professional fees, report fees, labour, materials and VAT to redesign the church hall will be:
£928,000
There will be additional cost for new tables and chairs, kitchen and bar appliances, window blinds, etc which could be in the region of:
£50,000
Therefore, the estimated total cost of the project will be:
£978,000
The Quantity Surveyor has also provided us with a cost for demolishing the hall and building a new hall based on the footprint of the proposed design – this would cost £1.5m.
Next Steps
The design plan will be submitted to the local authority for planning approval. If it is passed, the approval will last for a period of 2 years. Now that we know the likely cost of the project the Hall Redevelopment Team will consider the options available and report to the Parochial Church Council. We will provide further updates as the scheme progresses.
We would be interested to hear your views on the new design which can be sent by email to: [email protected] or speaking directly to members of the Hall Redevelopment team who are Shelagh Freer; Mike Jackson; Tony Bond; Revd. Matthew Peat and Trevor Sirrell.
— On behalf of the Parochial Church Council, St Mary’s Church, Whitkirk.
